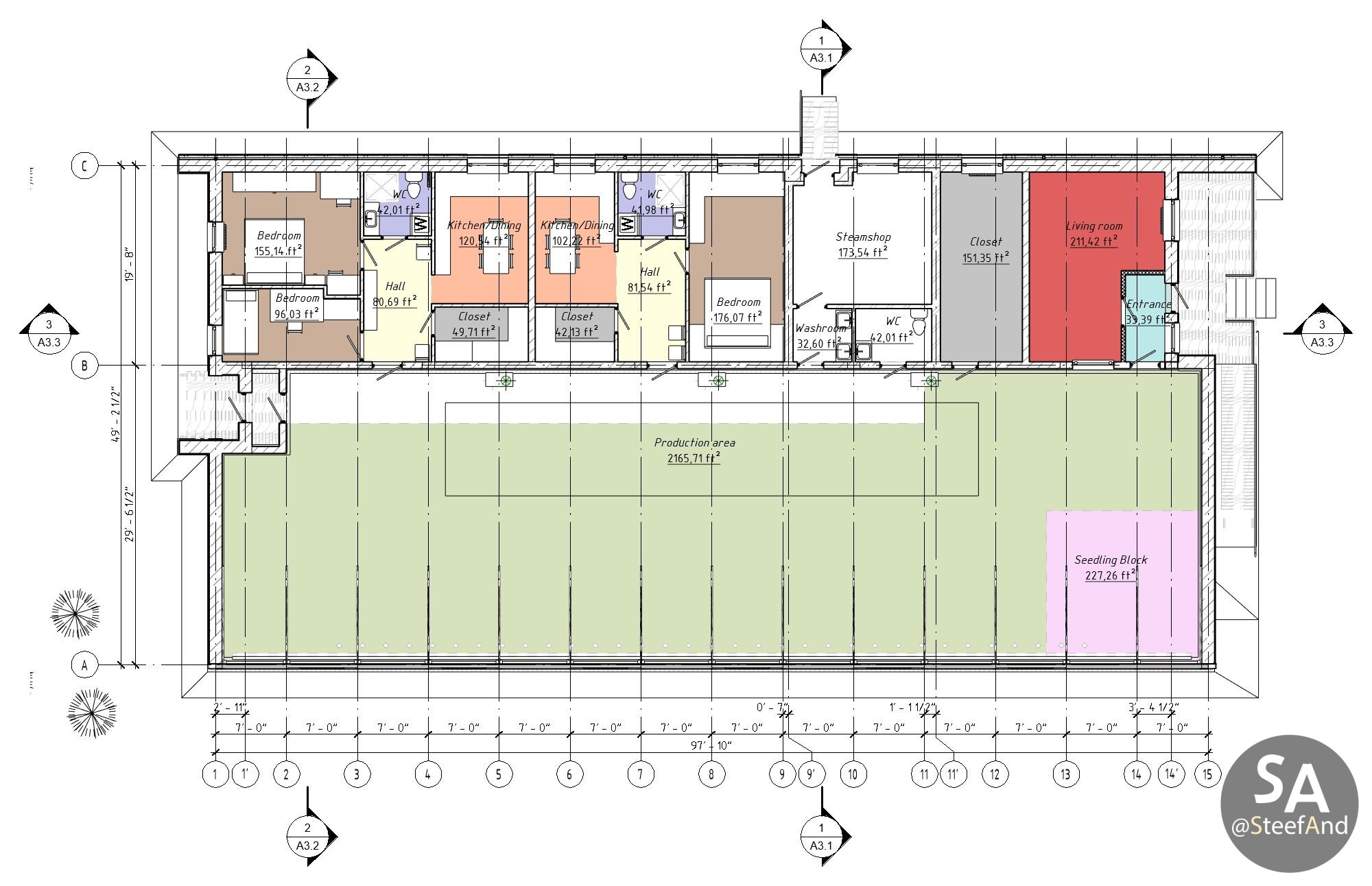
Vegetarium – is an energy efficient greenhouse which allows to grow plants with small amount of electricity even during decently cold winter without using fossil fuel. South side of it absorbs sun heat, underground heat storages – accumulate it for night.




